Котёл КВм-5,4 на ДВО со шнеком в Тамбове

Водогрейный котел КВм-5.4 на ДВО используется для нагрева жидкости до 115 °С, применяемой в системах отопления и горячего водоснабжения. Отопительные приборы КВм-5.4 способны прогревать помещения площадью до 54000 м². Твердотопливный котел оснащается механической топкой на древесных отходах со шнековой подачей. Дополнительно к агрегату приобретаются сопутствующие товары: вентиляторы, дымососы, циклоны, дымовые трубы, бункер топки и другое котельное оборудование.

Цена:
2 430 000 руб.
Количество:
Отправляя свои личные данные через формы на сайте, Вы даёте своё согласие на обработку персональных данных согласно Федеральному закону №152-ФЗ «О персональных данных» от 27.07.2006 г. в редакции от 01.07.2017.

Устройство и принцип работы котла КВм-5.4 со шнековой подачей

Шнековая подача состоит из вместительного бункера с желобом, на дне которого расположен спиралевидный шнек. Измельченное топливо подается в камеру сгорания при помощи шнековых транспортеров: оно загружается в бункер, и, за счет вращения шнековой спирали, перемещается в топку котла. Частотность вращения шнеков регулируется котельной автоматикой и зависит от количества потребляемого топлива. После транспортера древесные отходы попадают на колосниковую решетку и сжигаются в слое. С заданной периодичностью на решетку поступает новая порция топлива. Когда топливо сгорает, оно падает в зольник, откуда вычищается при помощи скребкового механизма.

Сгорая, топливо производит тепловую энергию, которая нагревает воду в соседнем отсеке — котельном блоке. Когда температура теплоносителя достигает заданной отметки, устройство контролирует этот показатель, поддерживая его в постоянном режиме. Далее, нагретая жидкость может использоваться для отопления или горячего водоснабжения жилых домов, объектов промышленности, административных или общественных помещений.

Условное обозначение

Водогрейный котел КВм-5.4 на древесных отходах со шнековой подачей, где:

  • К — котел;
  • В — водогрейный;
  • м — механическая топка;
  • 5.4 — мощность топки.

Монтаж котла КВм-5.4 на древесных отходах со шнековой подачей

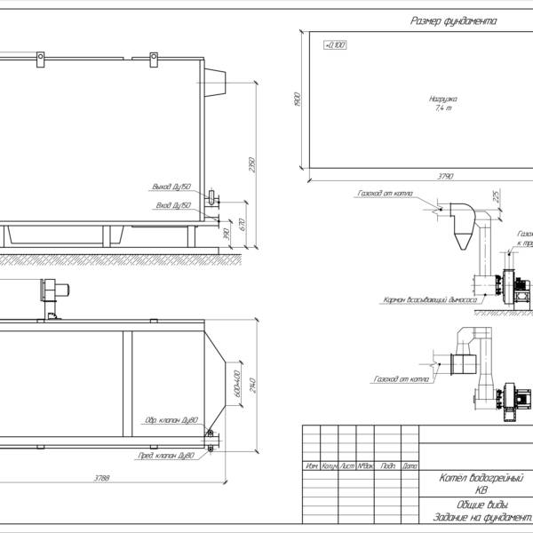
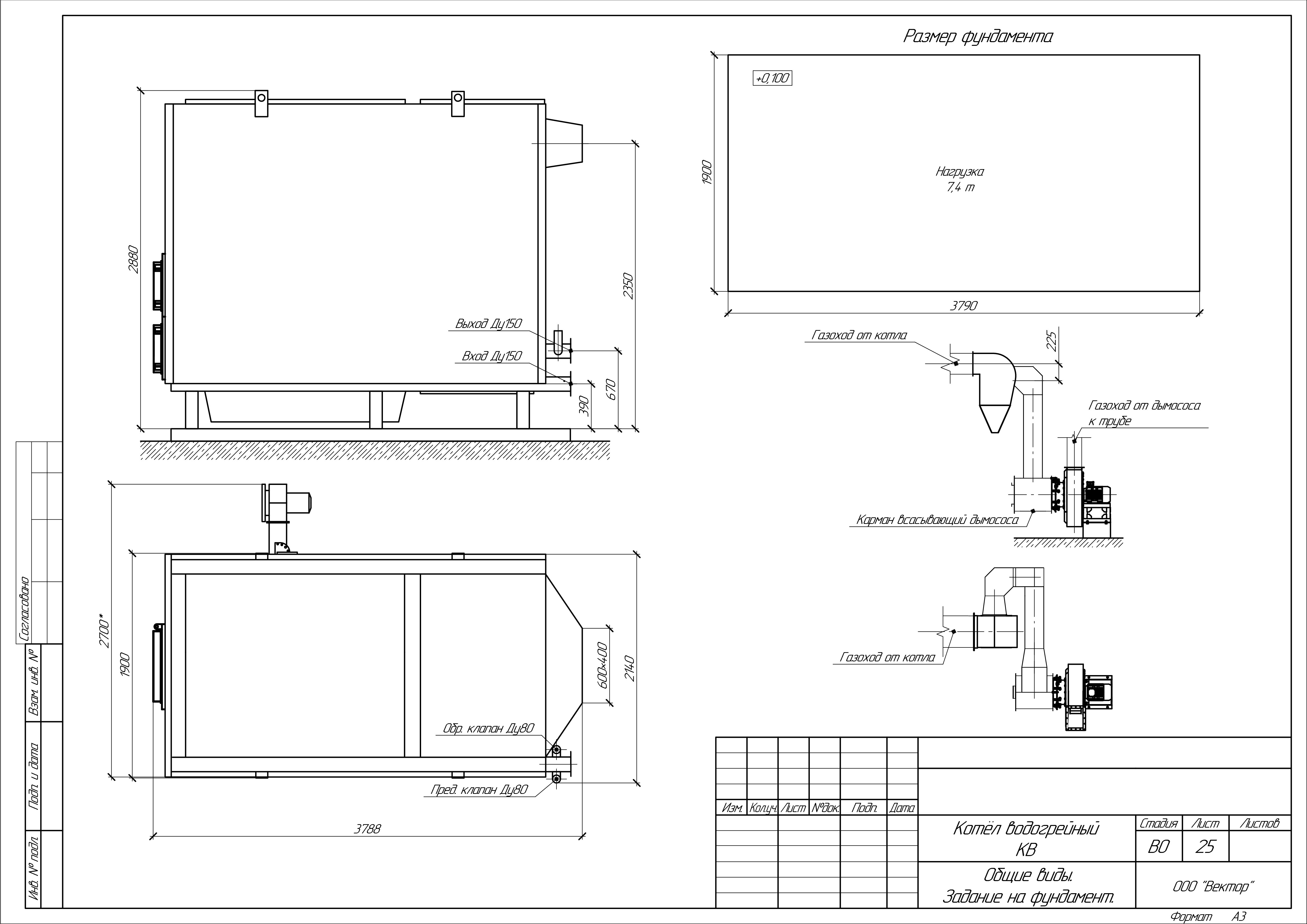
Котел КВм-5.4 на древесных отходах со шнековой подачей поставляется в удобном двублочном исполнении в полной заводской сборке, и легко стыкуются при монтаже. Устанавливается на предварительно выровненную поверхность без необходимости в строительстве специального фундамента. Крепится к поверхности при помощи анкерных болтов.

Монтаж котельного оборудования производится с соблюдением СНиП 11-35-76 «Котельные установки» и «Правил устройства и безопасной эксплуатации паровых и водогрейных котлов». Установка и пуско-наладочные работы выполняют специалисты, которые имеют разрешение на проведение данных работ.

Характеристики
Тип: КВм
Вид топлива: Дрова$Щепа$Опил$Кора
Мощность: 4.66 Гкал
Мощность: 5400 кВт
Мощность: 5.4 МВт
КПД, не менее: 82 %
Вид топки: Механическая колосниковая решётка
Класс котла: 1
Отапливаемая площадь: 54000 м²
Отапливаемый объём: 145800 м³
Тяга: Принудительная
Температура воды на выходе, не менее: 70...95 °С
Аэродинамическое сопротивление: 210 Па (мм. вод. ст.)
Расход теплоносителя среды: 186 м³/ч
Расход условного топлива: 811 кг/ч
Расход топлива: 1135 кг/ч
Массовый расход уходящих газов: 3.15 кг/с
Низшая теплота сгорания топлива: 5000 кКал/кг
Давление рабочей среды: 0,6 МПа (кгс/cм²)
Гидравлическое сопротивление при перепаде t: 0,08 МПа (кгс/cм²)
Температура воды на входе в котёл, не менее: 60 °C
Температура уходящих газов: 170…250 °C
Радиационная поверхность нагрева: 32.1 м²
Конвективная поверхность нагрева: 109.8 м²
Номинальное разрежение в топке при работе: 20…60 Па
Габаритные размеры (ДxШxВ): 5600х2150х3000 м
Масса котла (без воды): 6900 кг
Расчетный срок службы, не менее: 10 лет

Города поставок

Москва
Пн-Пт 09:00 - 18:00
Сб 09:00 - 17:00
Карачаево-Черкесская Республика
Пн-Пт 09:00 - 18:00
Сб 09:00 - 17:00
Екатеринбург
Пн-Пт 09:00 - 18:00
Сб 09:00 - 17:00

Совершите покупку за 4 шага

Шаг 1
Выберите товары из каталога
Шаг 2
Поместите нужные вам товары в корзины
Шаг 3
Укажите свои контактные данные в форме обратной связи
Шаг 5
Ожидайте звонка от менеджера для оформления покупки

Похожие товары

КВм
Котлы КВм
Цена от 0 руб.
Отопительные котлы
Водогрейный котел КВм-7.0 на ДВО используется для нагрева жидкости до 115 °С, применяемой в системах отопления и горячего водоснабжения. Отопительные приборы КВм-7.0 способны прогревать помещения площадью до 70000 м². Твердотопливный котел оснащается механической топкой на древесных отходах со шнековой подачей. Дополнительно к агрегату приобретаются сопутствующие товары: вентиляторы, дымососы, циклоны, дымовые трубы, бункер топки и другое котельное оборудование.
Отопительные котлы
Водогрейный котел КВм-6.3 на ДВО используется для нагрева жидкости до 115 °С, применяемой в системах отопления и горячего водоснабжения. Отопительные приборы КВм-6.3 способны прогревать помещения площадью до 63000 м². Твердотопливный котел оснащается механической топкой на древесных отходах со шнековой подачей. Дополнительно к агрегату приобретаются сопутствующие товары: вентиляторы, дымососы, циклоны, дымовые трубы, бункер топки и другое котельное оборудование.
Вы смотрели эти товары
Отопительные котлы
Водогрейный котел КВм-5.4 на ДВО используется для нагрева жидкости до 115 °С, применяемой в системах отопления и горячего водоснабжения. Отопительные приборы КВм-5.4 способны прогревать помещения площадью до 54000 м². Твердотопливный котел оснащается механической топкой на древесных отходах со шнековой подачей. Дополнительно к агрегату приобретаются сопутствующие товары: вентиляторы, дымососы, циклоны, дымовые трубы, бункер топки и другое котельное оборудование.
Отопительные котлы
Водогрейный котел КВм-4.0 на ДВО используется для нагрева жидкости до 115 °С, применяемой в системах отопления и горячего водоснабжения. Отопительные приборы КВм-4.0 способны прогревать помещения площадью до 40000 м². Твердотопливный котел оснащается механической топкой на древесных отходах со шнековой подачей. Дополнительно к агрегату приобретаются сопутствующие товары: вентиляторы, дымососы, циклоны, дымовые трубы, бункер топки и другое котельное оборудование.
Водоочистка
Вопрос очистки сточных вод сейчас стоит как никогда остро. Мы уже сейчас можем наблюдать катастрофические последствия сброса неочищенных отходов в окружающую среду. Почти уничтожены наши реки и озера, популяции рыбы и животных сократились до минимума, количество онкологических заболеваний бьют все рекорды.
Совсем не сложно если не исправить нанесенный природе ущерб, то хотя бы остановить дальнейшее загрязнение. Для это вам понадобится установить на своем производстве напорные фильтра «Квант Минерал».